Duda Модульні сходи Максимаї 00 U-180 13 елементів


Код: 16033590887
167192 грн
Ціна вказана з доставкою в Україну
Товар є в наявності
ЯК ЕКОНОМИТИ НА ДОСТАВКЕ?
Замовляйте велику кількість товарів у цього продавця
Інформація
  • Час доставки: 7-10 днів
  • Стан товару: новий
  • Доступна кількість: 10

Заказывая «Дуда модульная лестница Максиму 00 U-180 13 элементы», вы можете быть уверены, что данное изделие из каталога «Внутренняя лестница» вы получите через 5-7 дней после оплаты. Товар будет доставлен из Европы, проверен на целостность, иметь европейское качество.

Модульні сходи duda maxima 00 U-180 13 елементів

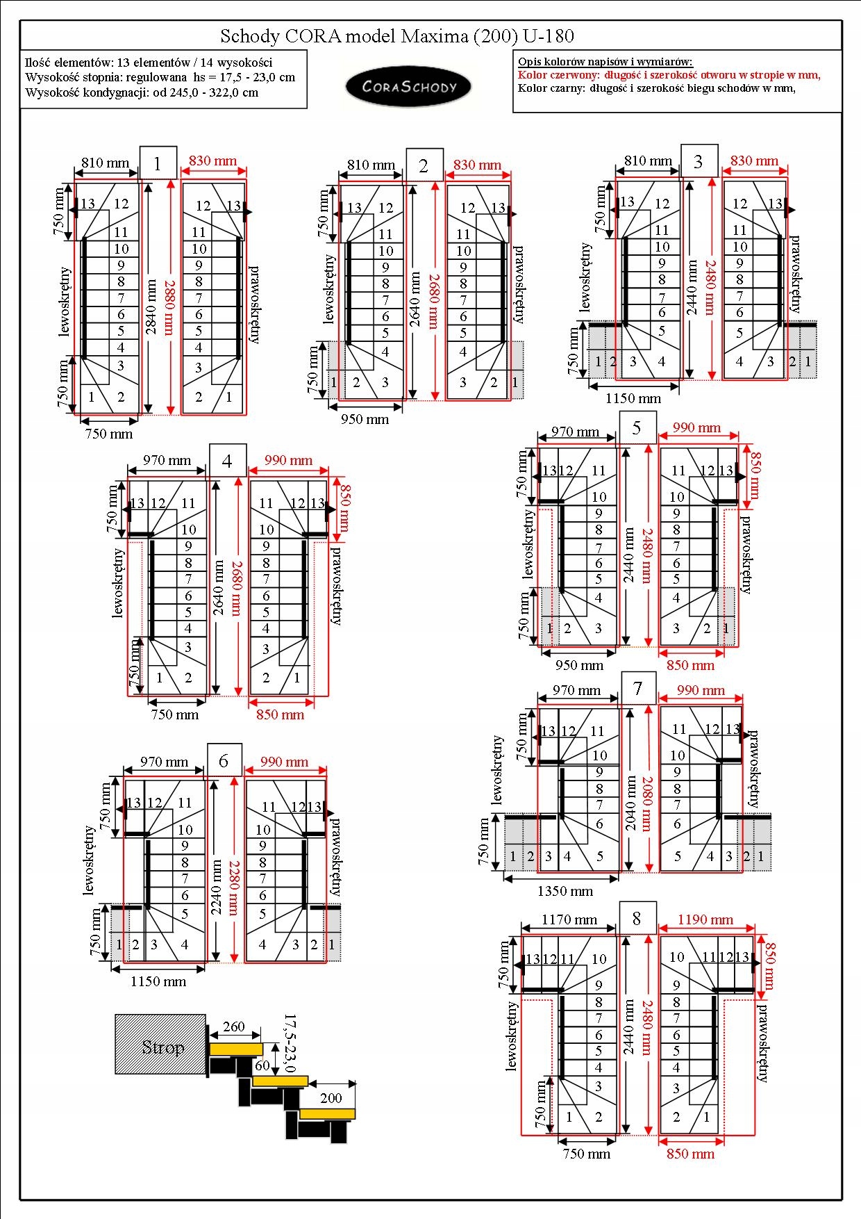
Сходи Максимаї 00-це сходи для самозбірки.

Включено 13 елементів сходів, що входять до 14 рівнів. Елементи виготовлені з міцної деревини (колір на вибір кольорової палітри виробника) та порошкоподібної сталі в конструкції чорного килима. Після замовлення послуги за додаткову плату, професійні збори в країні складають виробник.

Модульні сходи, як сучасне використання в будівництві, замінюються традиційними сучасними дерев'яними сходами.

Максимальні 00 Сходи мають можливість встановити його в одній із 52 конфігурацій, яка повністю представлена ​​виробником. Ця модель спочатку має U-180, як правий, так і зліва. Можна замовити просту процедуру, додавши анотацію до форми замовлення.

Рекомендується встановлювати сходи біля стіни, до 5 см від неї, що дозволяє монтувати якорів. Якщо стіна не витримує якоря, використовуйте полюс підтримки взаємозамінно. Для безкоштовних сходів планується використовувати колонку підтримки, а також перила, що захищає з обох сторін, додаткові варіанти на запит.

Опис, параметри, використовуйте

Застосування: Внутрішні сходи (всередині будівлі)

Вага навантаження: Максимальне навантаження на ступінь 200 кг

Вага: Набір сходів/Набір 13 елементів 220 кг

Тип сходів: Один променевий сходи (модуль) та використання and large rooms

Type of construction: modular metal 200

wood finish: in the price of stairs (illustrative photo on beech/BR-232) or colored in a selected color of the wood color palette

configuration, configuration, configuration, configuration, Systems: Possible use of the U-180 stairs in 52 systems

Balustrade type: 22 mm vertical trolls

Виробник: Польський виробник модульних, металевих сходів

Важлива інформація про безпеку використання та використання сходів:

Сходи повинні частково працювати біля стіни. Їх не можна зняти зі стіни більше 5 см. Це пов'язано з безпекою використання сходів. Потрібно використовувати якір якоря для стіни.

In the event of the stairs as a free-standing, it is advisable to use:

- support pole,

- Balustrade on both sides of the stairs,

Technical description

height: 245/322 cm,

Number of elements: 13 pieces/14 levels

degree height: Регульований 17,5/23,0 см,

Простий розмір ступеня: 260 (200+60) мм

Товщина стану: 40 мм

отвір у стелі: мінімум 1390 х 1480 мм

Ширина запуску:

-u-180: 750/750/750 мм

Тип деревини: Літа Бук,

Металевий колір: Конструкція чорного килима (RAL 9005)

дерев’яний колір: у ціні стовпів, ілюстративні фотографії сходів

Модульна структура: 200 метал

Один -розрізнений балюстрада

Вертикальні тролі (метал) 22 мм

, що потрапили в градуси

після 3 штук на 3 висоту, розміром

від підлогу - 3 градуси)

від підлоги до поверху 210 - 276 см - 11 градусів/12 висот ( - 2 градусів)

від підлоги до підлоги 228 - 299 см - 12 градусів/13 висоти ( - 1 градус)

plos CM - 14 градусів/15 висоти (+ 1 градус)

від підлоги до підлоги 280 - 368 см - 15 градусів/16 висота (+ 2 градусів)