ОГЛЯД ДВЕРІ НЕРЖАВІЮЧА 40х40 ЗАСУВКА


Код: 14316065664
2469 грн
Ціна вказана з доставкою в Україну
Товар є в наявності
ЯК ЕКОНОМИТИ НА ДОСТАВКЕ?
Замовляйте велику кількість товарів у цього продавця
Інформація
  • Час доставки: 7-10 днів
  • Стан товару: новий
  • Доступна кількість: 8

Приобретая «ОГЛЯД ДВЕРІ НЕРЖАВІЮЧА 40х40 ЗАСУВКА», вы можете быть уверены, что данное изделие из каталога «Ревизионная дверь» вы получите через 5-7 дней после оплаты. Товар будет доставлен из Европы, проверен на целостность, иметь европейское качество.

Дверцята ревізійні металеві 40х40

  • Польський виробник
  • Колір: нержавіюча сталь
  • виготовлений повністю з нержавіючої сталі
  • має отвір для легкого відкривання
  • функціональний та естетичний
  • закривається на засув

Металеві ревізійні дверцята дозволяють закривати ревізійні отвори, в яких розташовані вентилі, лічильники тощо. Двері виготовлені з нержавіючої сталі, що захищає від корозії та надає естетичного вигляду. Використаний матеріал і технологія гарантують високу якість виробу.

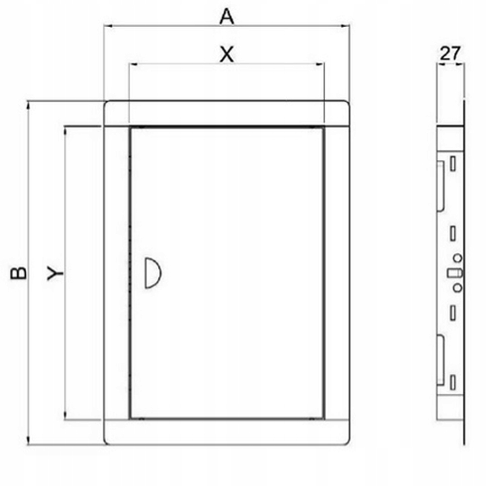
Розміри:

A - 445 мм

B - 445 мм

X - 397 мм

Y - 397 мм< /h2>