Пелет -котл SAS BIO Compact 20 кВт плюс 0% розстрочка субсидії


Код: 17710008271
295598 грн
Ціна вказана з доставкою в Україну
Товар є в наявності
ЯК ЕКОНОМИТИ НА ДОСТАВКЕ?
Замовляйте велику кількість товарів у цього продавця
Інформація
  • Час доставки: 7-10 днів
  • Стан товару: новий
  • Доступна кількість: 1

Приобретая «Котел Pellet SAS Bio Compact 20 кВт плюс субсидия на рассылку 0%», вы можете быть уверены, что данное изделие из каталога «Котлы и печи» вы получите через 5-7 дней после оплаты. Товар будет доставлен из Европы, проверен на целостность, иметь европейское качество.

специфікація

  • Тип: Казон з автоматичним введенням палива, гранул -котла з більш високим стандартом
  • Тип згоряння: Адміністрація палива з пальниками SAS Multi Flame
  • Сила: 10 кВт, 12 кВт, 17 кВт, 20 кВт, 25 кВт
  • паливо: біомаса у вигляді типу пресованих деревних гранул
  • Клас: 5 (найвищий, згідно з PN-en 303-5: 2012)
  • ecodesign: 10 кВт, 12 кВт, 17 кВт, 20 кВт, 25 кВт
  • Емісія пилу: не перевищує 20 мг/м³
  • Клас енергоефективності: a+
  • придатність: 91,7 ÷ 93,9%
  • Матеріал обміну: P265GH сталь котла з Gr. 6 мм, елементи котла та нержавіюча сталь вогнища 1.4301
  • Параметри: Паливний бак може бути розташований праворуч або ліворуч від котла, димохід може бути спрямований праворуч, ліворуч або вгору - завжди в задній частині котла (опція, доступна для спеціального замовлення)
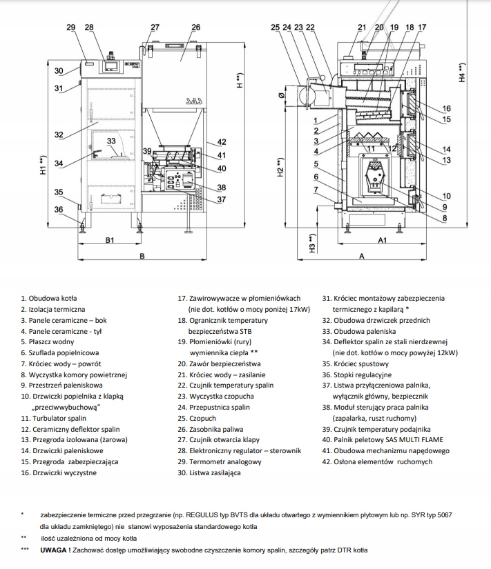
  • обладнання: контролер (ST -555P), SAS Multi Flame Burner (модуль управління спалюванням, стріляючий нагрівач, механізм руху решти, фотоелемент - датчик пожежі, датчик живоплоту), вентилятор (система управління повітрям - управління повітрям), дефлектор з дефлектором дефлекторної сталі (що стосується витяжки, що витягують, витяжки, що витягують, цераміку, цераміку, що витягує, цераміку, цераморикулятор, що витягують, витяжки, що витягують, витяжки, що витягують цераміку. Термометр, запобіжний клапан, паливний бак з датчиком відкриття клаптя, датчиком температури вихлопу, обмеженим температурою STB, набором регуляторних ніг, набором інструментів котла
  • Гарантія: 5 років для жорсткості теплообмінника, 1 рік для палива, 2 роки для електронних компонентів та інших компонентів котла

SAS BIO Compact Plus - boiler features

✅ ✅ ✅COOK with a higher standard - for a higher subsidy from the Clean Air program

✅ Cleans 5 (highest) requirements according to PN -EN 303-5: 2012 in terms of thermal efficiency, limit impurities, restrictions Safety

✅ ECOPROJECT (ECODESIGN) Визначено (ЄС) Регламент (ЄС) 2015/1189 від 28 квітня 2015 року. Щодо впровадження Європейського парламенту та Ради 2009/125/ЄС стосовно вимог до постійних котлів палива

✅ здатність брати участь у програмах CO -фінансування котла, що закуповує фонд або плут. 10kW, 12kW, 17kW, 20kW, 25kW

✅ ✅Klasa of energy efficiency A+

✅ internal combustion channel exchanger in the form of flames (pipes) and ceramic panels directly above the hearth

✅ SAS Multi Flame pellet (self -cleaning) (self -cleaning) covered mg/m3

  • Burning biomass in the form of pressed wood granules - pellets
  • Mechanical protection against reversing the flame to the fuel container (two transport snails separated by a surgery channel)
  • automatic movable grate cleansing the heartbreak (grate control sensor - Halllotron)
  • Automatic fuel lighting: heater (electric igniter)
  • furnace components made of stainless steel
  • The feeder temperature sensor
  • photocomocoom (fire sensor) - control of the presence of a flame (control, among others hearth)
  • blowing fan with the air flow control system (Air Flow Control) - precise adjustment of the amount of air and the correction of the fuel dose
  • It is conducive to limiting the heat loss in the boiler room (the construction solution of the inspection holes is covered by protective law No. 68867 given by the Patent Office of the Republic of Poland)

    ✅ ✅ Elements of stainless steel boiler colorful touch display, support for four circulation pumps, two mixing valves, weather control, built -in Ethernet module, PID algorithm and the possibility of connecting a room regulator

    Час доставки продукту залежить від наявності на складі.